7006 S VIRGINIA AVEPortland, OR 97219
Due to the health concerns created by Coronavirus we are offering personal 1-1 online video walkthough tours where possible.




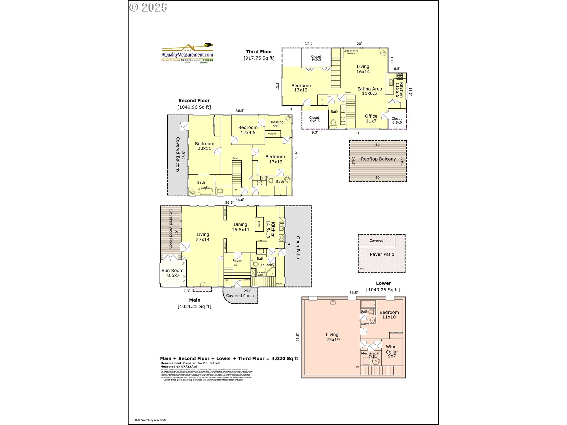
This is a very special property. Is currently the Fulton House Bed and Breakfast. Has financial records should buyer have interest in continuing it's commercial use. It would also make a wonderful large family home in a great location. The home has four suites and another bedroom for a total of 5 beds and 5 full baths. One bedroom on lower floor, two on second floor and one on the top floor with a second full kitchen and access to the rooftop deck with magnificent views of Mt Hood and the surrounding area. The lot is a corner lot with doors facing both Texas and Virginia. Has a large fenced yard with an amazing water feature and relaxing patio. Beautiful stained glass and many period features. Just a short distance to Zupan's and many restaurants and shops. Have your broker make an appointment to view this wonderful piece of Portland's history.
| 5 hours ago | Listing updated with changes from the MLS® | |
| 6 hours ago | Listing first seen on site |
The content relating to real estate for sale on this website comes in part from the IDX program of the RMLS™ of Portland, Oregon. Real estate listings held by brokerage firms other than are marked with the RMLS™ logo, and detailed information about these properties includes the names of the listing brokers. Listing content is Copyright © 2026 RMLS™, Portland, Oregon. Some properties which appear for sale on this website may subsequently have sold or may no longer be available.
Last checked 2026-03-01 02:39 PM PST.
All information provided is deemed reliable but is not guaranteed and should be independently verified


Did you know? You can invite friends and family to your search. They can join your search, rate and discuss listings with you.