540 N Y STWashougal, WA 98671
Due to the health concerns created by Coronavirus we are offering personal 1-1 online video walkthough tours where possible.




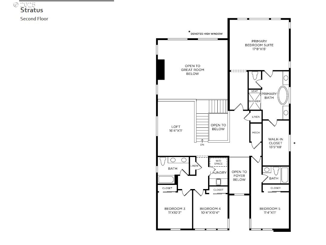
Construction has begun on this homesite and key design selections are already underway, including electrical, plumbing, and structural options. Act now to secure the opportunity to still personalize many of the interior finishes before it's too late. Build your dream home at Bluffs at Granite Highlands, a premier new construction community with sweeping views of the Columbia River and Mount Hood. With only 9 build to order homes remaining, opportunities like this are quickly disappearing. The Stratus floor plan is designed to showcase the scenery with a dramatic two story foyer and light filled great room. The main level offers a private office, bedroom, and full bath for flexible living. Upstairs, the primary suite captures stunning river and mountain views and includes a spacious bath and walk in closet. Three additional bedrooms, two baths, and a loft complete the upper level. The daylight basement adds a bonus room, bedroom, and full bath, with views from all three levels. This homesite is one of the few offering usable backyard space, making it a rare find. Located just 20 minutes from PDX with easy access to Camas, Washougal, and endless outdoor recreation. Secure your homesite before it is gone. Toll Brothers® is an award winning, Fortune 500, home builder that leads the nation in building luxurious new construction homes in some of America's most sought-after locations.
| 4 days ago | Listing updated with changes from the MLS® | |
| 3 weeks ago | Price changed to $1,814,000 | |
| 2 months ago | Status changed to Active | |
| 2 months ago | Listing first seen on site |
The content relating to real estate for sale on this website comes in part from the IDX program of the RMLS™ of Portland, Oregon. Real estate listings held by brokerage firms other than Toll Brothers Real Estate Inc are marked with the RMLS™ logo, and detailed information about these properties includes the names of the listing brokers. Listing content is Copyright © 2026 RMLS™, Portland, Oregon. Some properties which appear for sale on this website may subsequently have sold or may no longer be available.
Last checked 2026-04-27 07:27 AM PDT.
All information provided is deemed reliable but is not guaranteed and should be independently verified

