Save
Ask
Tour
Hide
$775,000
39 Days On Site
39812 NE 94TH AVELa Center, WA 98629
For Sale|Single Family Residence|Active
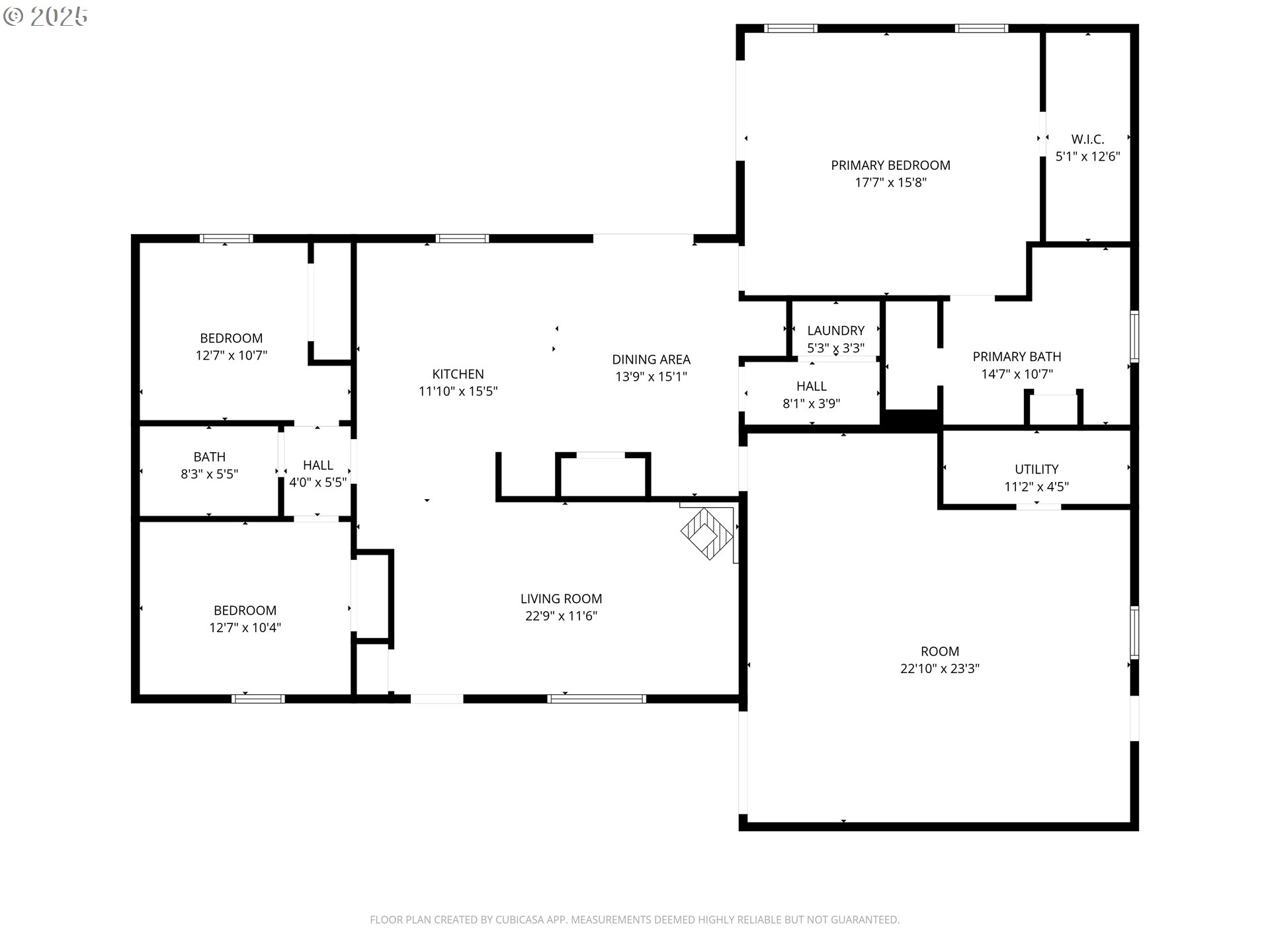
3
Beds
2
Total Baths
2
Full Baths
2,160
SqFt
$359
/SqFt
2012
Built
County:
Clark
Listing courtesy of Elisha Jolma of Sho'me Real Estate 3605621313
Due to the health concerns created by Coronavirus we are offering personal 1-1 online video walkthough tours where possible.
Call Now: 503-334-1515
Is this the listing for you? We can help make it yours.
503-334-1515



Save
Ask
Tour
Hide
Investors & Visionaries – Your Canvas Awaits! Bring your tools – ideas – and blueprints – this property is full of potential. The home isn’t fully permitted – but with the right updates – and a little elbow grease – to bring it up to code – it could someday become a true masterpiece. Situated on approximately 10 acres – the land offers sweeping views of Mt. Hood – Mt. Bachelor – and the Portland city skyline. Multiple outbuildings – and a quiet dead-end road – provide the perfect backdrop for your vision. Potential to rezone or subdivide – buyer to verify zoning and do their own due diligence.
Save
Ask
Tour
Hide
Listing Snapshot
Price
$775,000
Days On Site
39 Days
Bedrooms
3
Inside Area (SqFt)
2,160 sqft
Total Baths
2
Full Baths
2
Partial Baths
N/A
Lot Size
10 Acres
Year Built
2012
MLS® Number
777606077
Status
Active
Property Tax
$4,393.49
HOA/Condo/Coop Fees
N/A
Sq Ft Source
N/A
Friends & Family
Recent Activity
| 2 weeks ago | Listing updated with changes from the MLS® | |
| a month ago | Listing first seen on site |
General Features
Acres
10
Disclosures
Disclosure
Foundation
Concrete Perimeter
Land Lease
No
Number Of Stories
1
Parking
CarportRV Access/Parking
Property Condition
Fixer
Property Sub Type
Single Family Residence
Sewer
Septic Tank
SqFt Total
2160
Style
Stories1
Water Source
PrivateWell
Zoning
R-5
Interior Features
Appliances
WasherDryerDishwasherFree-Standing Refrigerator
Basement
None
Fireplace
Yes
Fireplace Features
Wood Burning
Fireplaces
1
Flooring
TileVinyl
Heating
Wood Stove
Interior
Vaulted Ceiling(s)
Window Features
Double Pane Windows
Save
Ask
Tour
Hide
Exterior Features
Exterior
Garden
Lot Features
SlopedGentle SlopingLevelWooded
Other Structures
Barn(s)Outbuilding
Patio And Porch
Deck
Roof
Composition
View
CityMountain(s)
Waterview
CityMountain(s)
Windows/Doors
Double Pane Windows
Community Features
Accessibility Features
Therapeutic Whirlpool
Financing Terms Available
CashConventionalVA Loan
MLS Area
_52
Roads
Paved
Schools
School District
Unknown
Elementary School
La Center
Middle School
La Center
High School
La Center
Listing courtesy of Elisha Jolma of Sho'me Real Estate 3605621313
The content relating to real estate for sale on this website comes in part from the IDX program of the RMLS™ of Portland, Oregon. Real estate listings held by brokerage firms other than are marked with the RMLS™ logo, and detailed information about these properties includes the names of the listing brokers. Listing content is Copyright © 2025 RMLS™, Portland, Oregon. Some properties which appear for sale on this website may subsequently have sold or may no longer be available.
Last checked 2025-11-28 07:37 PM PST.
All information provided is deemed reliable but is not guaranteed and should be independently verified
The content relating to real estate for sale on this website comes in part from the IDX program of the RMLS™ of Portland, Oregon. Real estate listings held by brokerage firms other than are marked with the RMLS™ logo, and detailed information about these properties includes the names of the listing brokers. Listing content is Copyright © 2025 RMLS™, Portland, Oregon. Some properties which appear for sale on this website may subsequently have sold or may no longer be available.
Last checked 2025-11-28 07:37 PM PST.
All information provided is deemed reliable but is not guaranteed and should be independently verified
Neighborhood & Commute
Source: Walkscore
Save
Ask
Tour
Hide


Did you know? You can invite friends and family to your search. They can join your search, rate and discuss listings with you.